|
 |
Вторник, 03.03.2026, 10:24 |
| СТУДВОРКПРО100 | 

 |
| Приветствую Вас Гость | RSS |
|
|
Клапан предохранительный 00.43.000 ЧЕРТЕЖ
| |
| lepris | Дата: Понедельник, 15.07.2024, 06:47 | Сообщение # 1 |
 Генералиссимус
Группа: Администраторы
Сообщений: 3577
Статус: Offline
| Клапан предохранительный 00.43.000 ЧЕРТЕЖ
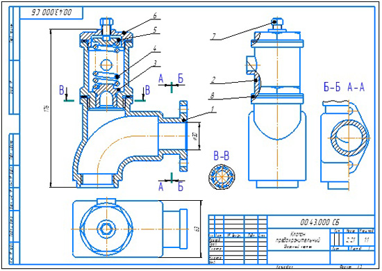
 Предохранительный клапан служит для ограничения давления в водяной магистрали. Если давление в магистрали повышается, то клапан поз. 3, сжимая пружину поз. 4, открывает отверстие стакана поз. 2. В зазор, образовавшийся между клапаном и седлом стакана, будет поступать вода до тех пор, пока давление в магистрали не упадет до нормального. Излишек воды уходит через отверстие, находящееся в задней стенке стакана. При нормальном давлении пружина поз. 4 возвращает клапан в прежнее положение. Клапан предохранительный 00.43.000 СБ Клапан предохранительный 00.43.000 спецификация Клапан предохранительный 00.43.000 3d сборка Клапан предохранительный 00.43.000 чертежи Корпус 00.43.001 Стакан 00.43.002 Клапан 00.43.003 Пружина 00.43.004 Тарелка 00.43.005 Крышка 00.43.006
Клапан предохранительный 00.43.000 СКАЧАТЬ
|
| |
|
|
|
| Copyright MyCorp © 2026 |
uCoz |
| |